Vardagsrum

Nyrenoverad sekelskiftestrea

3 ROK 98 kvm 9 490 kr/månad

I hjärtat av Norberg, med närhet till centrum, återfinns denna sekelskifteslägenhet belägen i en för Norberg kulturhistoriskt betydelsefull byggnad. Bostaden karaktäriseras av en genomtänkt planlösning och ett rikligt ljusinsläpp som tillsammans med en generös takhöjd skapar en luftig och rymlig atmosfär. Lägenheten har nyligen genomgått en varsam renovering där stor vikt har lagts vid att bevara de ursprungliga detaljerna i hög kvalitet så som furugolv, pardörrar, munblåsta fönsterglas och vackra listverk. Köket är rymligt och funktionellt med ett klassiskt kallskafferi och inredning i massiv furu, vilket ger en tidstypisk och gedigen känsla.

Denna bostad lämpar sig särskilt väl för den som har ett intresse för kulturhistoria och byggnadsvård. Här finns möjligheten att bo i en historisk miljö där moderna bekvämligheter har integrerats med omsorg om det förflutna, och där varje detalj bidrar till att berätta en historia om en svunnen tid. Samtidigt ligger huset i teknologisk framkant och du har tillgång till bland annat snabbt bredband och elbilsladdning. Ta del av det hantverkskunnande som tidigare generationer lämnat efter sig och lev i en del av Norbergs viktiga och omfattande kulturhistoria. Välkommen till ett hem byggt med kärlek och omsorg!

Lägenhetsfakta

  • Engelbrektsgatan 40, Norberg
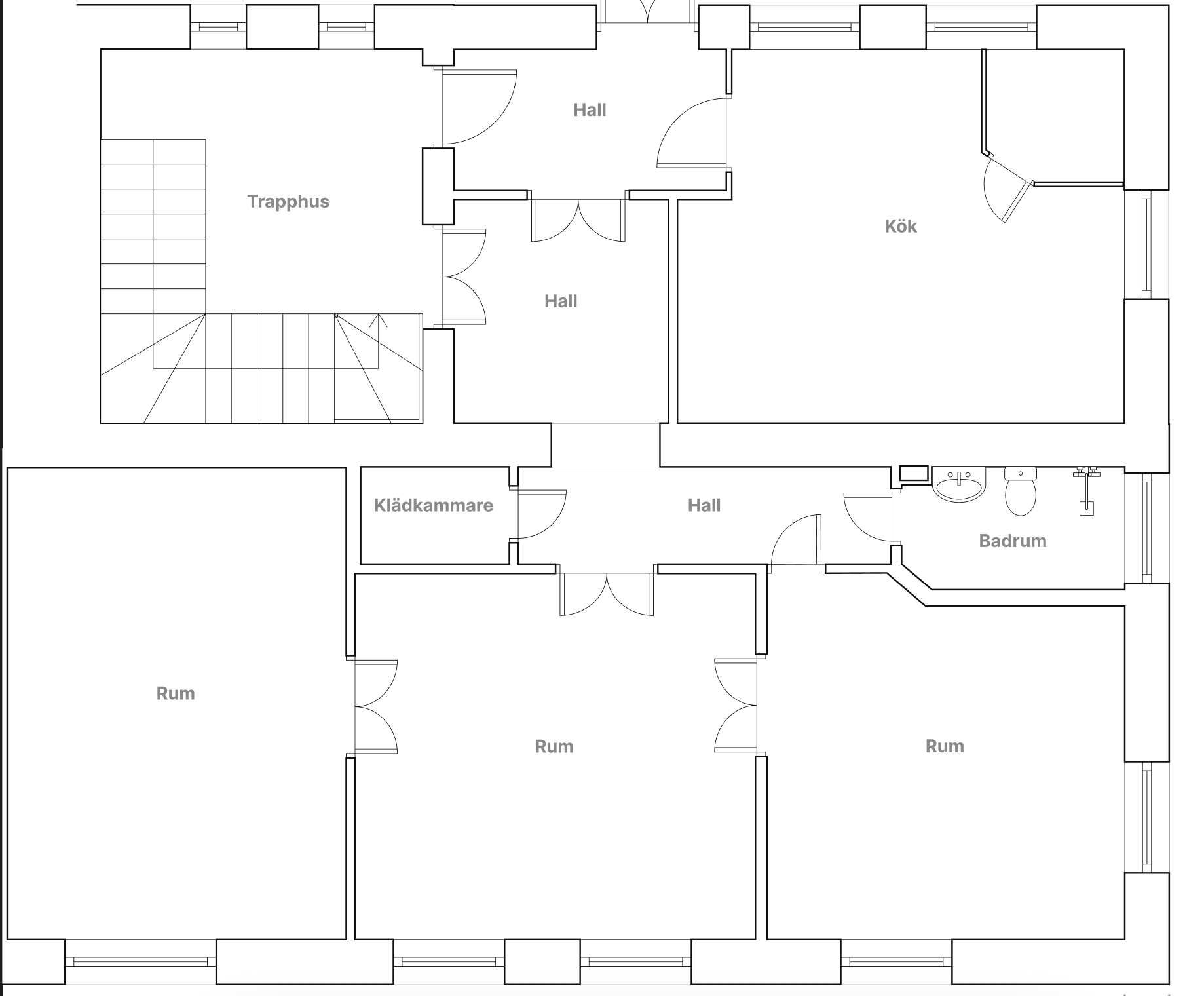
  • 3 rum + kök
  • 98 kvadratmeter
  • Våning 2, ej hiss
  • Balkong
  • Diskmaskin
  • Bredband (Open Infra)
  • Tvättstuga i källaren (används bara av denna lägenhet)
  • Källarförråd ingår, möjlighet att hyra mer
  • Parkering med motorvärmare eller elbilsladdning kan hyras
  • 9 490 kr/mån i varmhyra
  • Tidigast inflytt Jan 2026
Planlösning
Byggnadsskiss

Sahlströmska Fabriken

Axel Sahlström startade i början av seklet en verksamhet för tillverkning och försäljning av elektriska apparater från Flängan utanför Norberg. Verksamheten blev så framgångsrik att Sahlström 1916 lät bygga en kombinerad fabrik och bostad inne i Norberg, som fick namnet Axel Sahlströms Elektrotekniska Fabrik. Byggnaden uppfördes samtidigt som flera av Norbergs andra stora stenhus (som järnhandeln, värdshuset och bankhuset) och ritades, precis som dessa, av arkitekten Arvid Grane.

Tyvärr upphörde Sahlströms verksamhet redan under 1920-talet. Sedan dess har hans vackra byggnad fyllt många olika funktioner och huserat allt från bank- och postkontor till tryckeri och diverse affärslokaler. Idag inrymmer huset enbart lägenheter.

Vardagsrum Kök Kök detalj Sovrum Badrum Hall

Foton är tagna i den faktiska lägenheten, inredning tillagd med AI.

Intresserad av denna lägenhet?

Skicka ett mejl till info@cicuma.se och berätta om dig själv.

Krav ställs alltid på ordnad ekonomi och goda referenser.

Läs vår uthyrningspolicy